Seewind - Baabe
Preview only — see all hotel photos
See all 17 photos 1 /
17
6.4
9评论
Best options for your travel dates
在地图上显示酒店
Seewind - Baabe
离Seewind - Baabe到琥珀长廊波罗的海度假胜地走路只需25分钟,而到吕根轻便铁道只需14分钟. 这栋别墅内的客房配备齐全的设施:阳台,无线网络上网 和多频道电视.
从住宿场所到巴贝中心走路只需10分钟. Alanya Döner und Pizzeria提高土耳其美食,距离别墅仅5分钟的步行. 别墅毗邻格赫伦.
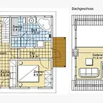
Seewind - Baabe一共有2间卧室. 该别墅为旅客提供2间浴室.
住宿场所还包括大厨房. 最近公共汽车站很近,仅有400米. Seewind - Baabe设有露台,为客人提供舒适的住宿. Seewind - Baabe给客人提供桑拿.
更多 +
收起 -
请等以下,我们给您检查可提供的客房.
搜寻酒店
设施
主要设施
- 免费WiFi
- 私人海滩
- 方便儿童使用
- 不允许携带宠物
客房设施
概况:
- 非吸烟区
- 公共场所免费Wi-Fi
- 停车场
- 不可以携带宠物
- 防过敏房间
餐饮服务:
- 电热水壶
- 烘干机
运动及休闲:
- 海滩通道
客房设施:
- 平台
- 洗衣机
- 婴儿床/ 婴儿摇篮
政策
入住时间: 16:00至23:59
离店时间: 10:00以前
地图
当地名胜古迹
旅游景点
- 琥珀长廊波罗的海度假胜地 (2351公里)
- 伯恩斯坦人行漫步道 (2105公里)
- 塞林码头 (3公里)
- Philippshagen railway (1447公里)
- Dunengolf Gohren (1918公里)
- Seaside Promenade (2314公里)
- Herzogsgrab (2107公里)
- Grosssteingrab Alt Reddevitz (2306公里)
- Dunengolf (1993公里)
机场
- 赫林斯多夫机场 (165公里)
评论
发表点评
100%真实住客点评
6.4 /10